.jpg)
Η SCREEN είναι η καινούρια εστία με ξύλα που συνδυάζει το design και την τεχνολογία: ανοιγώμενη πόρτα με τζάμι που καλύπτει όλη την πρόσοψη, διαχείριση της καύσης αυτόματα ή χειροκίνητα, καθόλου καπνός ούτε πεταμένα άσκοπα ξύλα.
Η εστία είναι επενδυμένη εσωτερικά με ECOKERAM® για να ανεβάζει υψηλές θερμοκρασίες και να βελτιώνει την καύση Είναι διαθέσιμη στα μοντέλα 80 και 100 με φυσικό ελκυσμό ή με βεντιλατέρ.

.jpg)
|
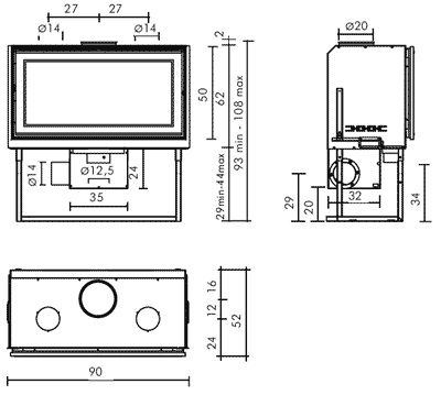
ΤΕΧΝΙΚΆ ΧΑΡΑΚΤΗΡΙΣΤΙΚΆ
|
| τεχνικά στοιχεία |
|
N |
V |
| πλάτος |
cm |
90 |
90 |
| βάθος |
cm |
52 |
52 |
| ύψος |
cm |
93/108 |
93/108 |
| ωφέλιμη θερμική ισχύς |
kW |
9 |
10 |
| συνολική απόδοση |
% |
78 |
79 |
| κατανάλωση καυσίμου (ξύλα) |
kg/h |
2,8 |
3 |
| συνολικό βάρος |
kg |
175 |
180 |
| Ø έξοδος καπνού |
cm |
20 |
20 |
| Ø παροχή αέρα |
cm |
12,5 |
12,5 |
| ύψος ελάχιστο ύψος καμινάδας |
m |
3 |
3 |
| θερμαινόμενος όγκος (μόνωση σύμφωνα με το νόμο 10/91) |
m³ |
216 |
243
|
|