
ΑΕΡΟΘΕΡΜΗ ΕΝΕΡΓΕΙΑΚΗ ΕΣΤΙΑ
Επίπεδη monobloc διαμπερές εστία με 2 συρόμενες και ανοιγόμενες πόρτες.
Χαρακτηρίζεται από το μεγάλο εμβαδόν του χώρου καύσης και από τη μεγάλη απόδοσή του. Η γραμμική του σχεδίαση σε συνδυασμό με την πανοραμική προβολή της φωτιάς και την ικανότητά του να τοποθετείται στο κέντρο ενός χώρου, το καθιστούν κατάλληλο για μοντέρνο και εξεζητημένο design.
Διατίθεται σε φυσική ροή ή με αερόθερμο.
ΤΕΧΝΙΚΑ ΧΑΡΑΚΤΗΡΙΣΤΙΚΑ
Θερμική ισχύς
KW
14,5
Ονομαστική κατανάλωση
Kg/h
4-6
Θερμική απόδοση
%
75
CO (σε 13% O2)
%
235,68
Βάρος εστίας
(με θερμοθάλαμο & παρελκόμενα χωρίς συσκευασία)
kg
338
Διάμετρος εξόδου καυσαερίων
cm
Ø 250
Μέσος όρος θερμοκρασίας εξόδου καυσαερίων
℃
290
Καύσιμο
Ξύλο -Ξυλώδη Βιομάζα
Συνεχής λειτουργία
h
8
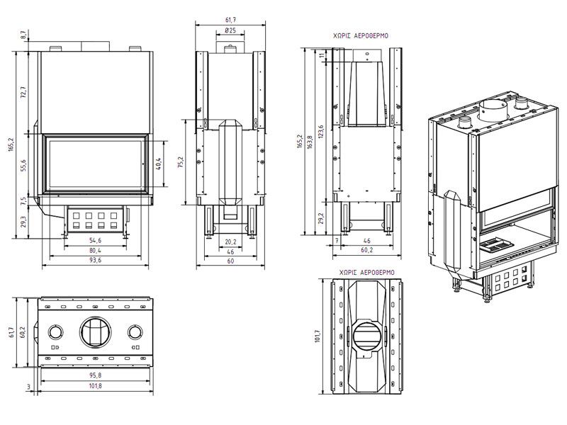
Εξωτερικές διαστάσεις
cm
102 X 60 X 174
Διαστάσεις ανοίγματος προσαγωγής αέρα καύσης
mm
Ø 150 ή (85 m3)
Παροχή αέρα αερόθερμου
mm
Είσοδος 2Χ Ø 120
Έξοδος 2Χ Ø 100 (300 m3/h)
Αριθμός έκθεσης δοκιμής
CE-Δ07-17
Εγκεκριμένο βάση προτύπου
EN 13229