Η νέα μας ιστοσελίδα είναι γεγονός
Ενημερωμένη και άμεση έχει ως στόχο η αμφίδρομη επαφή μας να γίνει πιο συχνή και ουσιαστική...



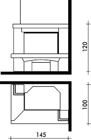
DERBY

Διακόσμηση με πλαϊνά και ρίχτια από μάρμαρο τραβερτίνο κίτρινο αντικέ. Ποδιά από γυαλισμένο τραβερτίνο αντικέ. Εταζέρα από ξύλο.